【方志四川•记忆】「成都老照片」细节惊人!川大华西建筑设计手稿惊艳百年时光

原华西协合大学老建筑的设计者、英国著名建筑设计师荣杜易的后人,英国布鲁内尔大学副校长Prof. Andrew George将老建筑的规划布局、设计、施工的原图和手稿捐赠给四川大学
108年前,在成都华西坝(锦江南岸、南台寺之西)的理科临时教室里,原华西协合大学(今四川大学华西医学中心)正式开学了。
108年后,原华西协合大学老建筑的设计者,英国著名建筑设计师荣杜易的后人,把曾祖父当年珍贵的设计手稿,捐赠给了四川大学。这些珍贵的手稿再现了原华西协合大学建设之初的历史风貌。
我们先一起来欣赏下这些珍贵的历史手稿↓↓↓
图书馆





教学大楼



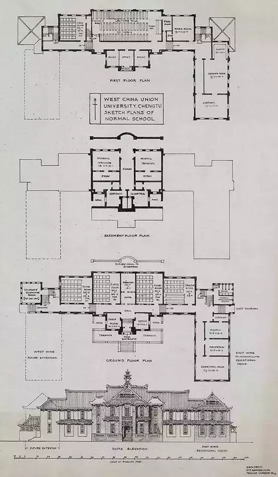
师范学院



生物大楼




校长办公处

正门入口和钟楼




医学牙科楼



医学大楼




以上只是展示了捐赠的部分手稿。下面我们来一起了解一下一百多年前那段关于川大华西建筑的故事。

弗雷德·荣杜易,1860年出生于英国的斯卡布罗,算是英格兰北方的一个名门望族。他的父亲约翰·荣杜易是当地著名的粮食供应商,他的哥哥小约翰·荣杜易,从事咖啡和茶的贸易。而他的家族中还有一个大名鼎鼎的亲戚,是英国最为著名的甜品巧克力制造商,创立了诸如KIT KAT巧克力这样的品牌。
但弗雷德·荣杜易没有子承父业,他对建筑展现出了兴趣,不到30岁就考取了建筑师执照,并搬到伦敦开始创业。
中西方建筑元素获得校方认可
1905年,在成都的西方基督教传教士决定在四川创办一所“规模宏大,科学完备”的大学。1906年英国圣公会、公谊会,美国浸礼会、美以美会和加拿大循道会等在成都联合创办教会大学,由于是由5个教会联合创办的,取名华西协合大学,成都人则更习惯于称之为“五洋学堂”。

华西协合大学创立
华西协合大学在英国、美国和加拿大公开招标并举办了设计竞赛。荣杜易的设计所也受邀参与招标,并最终得标。荣杜易对整个华西坝进行了整体规划,为华西协合大学后期建设提供了框架。

华西协合大学自北鸟瞰图

师范学院

行政大楼门廊

图书馆

生物大楼

师范学院

图书馆内部
在修建过程中,大部分建筑材料都取自当地,例如在成都三瓦窑一带定制的砖瓦,来自四川西部高山的木材,从岷江上游河岸采集的石灰石等。然而,建筑用的铁钉和玻璃等,主要是从汉口和上海甚至是国外购买而来。
英国设计师坐轿子辗转到成都
华西坝在成都南门外二里、锦江之滨、南台寺之西,那里有一片风景清幽之地,古名“中园”,曾是刘备游幸之地。五代时,这里成了王建的蜀宫别苑,园内有百年老梅状如苍龙,故又称“梅龙”“梅苑”。南宋大诗人陆游居蜀中时常游于此,据他记述说:“成都城南,有蜀王旧苑,多梅花,百余年古木。”
中标之后,弗雷德·荣杜易就到成都进行实地的考察。他和做茶叶贸易的哥哥约翰从伦敦出发,乘坐蒸汽船、火车、木船……一路颠簸了好几个星期,终于来到了中国。


荣杜易先到北京参观了故宫,对于中式的房屋有了大体上的了解。


在入川路上,荣杜易也体会到了入蜀之难,乘坐着简易的轿子好不容易来到了成都。

一路上,荣杜易对于四川地区民居的所见所闻让他很有感慨。他脑子里,对于如何将本地风格与西方现代设计结合的想法也愈发成熟。他决定大量的采取中式的对称设计,以及中式几何的结构进行绘图。
在成都考察了3周之后,荣杜易还去了日本进行考察。回到了伦敦之后,他便开始了马不停蹄的设计工作。在外观上着力突出中国特色的青砖黑瓦,间以大红柱、大红封檐板及清一色的歇山式大屋顶,在屋脊、飞檐上点缀以远古神兽、龙凤、怪鸟,檐下用斗拱为装饰,给人以神秘古朴的东方美感;内部则采用纯西式结构。这一中西合璧的建筑和华西协合大学一起,给当时的成都带来了几许的现代感。
东方的龙西方的鹰 魅力独特
经过荣杜易和他的建筑团队的艰苦的工作,华西坝老建筑群终于横空出世。
华西坝老建筑占地约1000亩,凝固了中西合璧的独特魅力,其布局有别于中国传统的庙堂建筑的层层递进、威严幽深,而呈错落有致、闲适大度、开放包容、散落有序的格局。






其楼顶除钟楼(尖顶)外,全是歇山式屋顶,主柱上皆用斗拱,既有中国传统的青砖黑瓦,雕梁画栋,飞禽走兽,又融入了西式风格的楼基、墙柱、门窗等。其主要建筑如华西校区办公楼(事务所)入口中部矗立着一中式门楼,门楼屋脊上趴着中国传统水中神兽;前廊上伫立着八根大红圆柱,其梁架结构系采用四川地方建筑特色的穿斗式,梁架饰以典雅的中国古典装饰图案;入口石栏杆上更是雕刻着华夏的图腾——龙。





与华西校区办公楼遥遥相对的老图书馆(懋德堂),画栋雕梁、檐牙高琢,尤其是屋脊上反趴着的水兽,跃跃欲飞的盘龙等,使中国韵味更加突出,而堂内石柱上又到处可见西式鹰徽浮雕。
红柱,绿棱,飞檐,画栋。
岁月沧桑,它们见证了历史的变迁、时代的进步,陪伴着川大华西学子度过了一个个春夏秋冬。
时光如梭,它们滋养着一代代川大华西人成长成才,并将继续与新一辈川大华西儿女,共同谱写今天与未来。
建筑是凝固的音符、是凝固的诗篇,经年之后,它温柔了岁月,惊艳了时光。
来源:四川大学(微信公众号)
作者:华西临床医学院
配图:医学管理处

用户登录
还没有账号?
立即注册