中国古代理想城市规划理念探源
演讲人:侯卫东 演讲地点:二里头夏都遗址博物馆 演讲时间:2024年11月
《光明日报》( 2025年02月08日 10版)

侯卫东 河南大学黄河文明与可持续发展研究中心副主任、教授、博士生导师。主要研究方向为夏商周考古和城市考古,参加过郑州商城、洹北商城、殷墟、宋国故城、郑韩故城等夏商周时期都邑遗址的考古发掘工作,承担国家社科基金一般项目“郑州商城与夏商之际社会变迁研究”、国家社科基金重大项目“夏商周三代都邑的考古学研究”子课题“早商都邑研究”、河南省哲学社会科学重大项目“商文明——中国早期王权鼎盛阶段的国家与社会”等多项课题。出版《郑州商城与王畿区域聚落考古研究》等专著2部,发表学术论文和研究报告30余篇。

河南汉魏洛阳城遗址(2017年摄)。新华社发

游客在河南省洛阳市定鼎门遗址博物馆参观隋唐洛阳城定鼎门地下原址遗迹展示区。新华社发

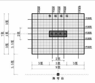
周代鲁国都城规划推测方案。(陈筱制图)

荥阳京城遗址平面布局示意图。(侯卫东制图)
城市的出现是人类文明史上一座关键里程碑,古人通过营造城市而构建了全新的社会秩序、塑造了城市生活方式。城市自诞生以来就成为人群聚居之地、资源汇集之处,在古人身份构建中发挥了关键作用。以城墙为界限的地缘关系与以血缘为纽带的宗族关系深度融合,居住形态和社会组织之间高度耦合,共同形成了中国古代社会治理和宗族生活交织在一起的人文景观。
中国古代理想城市规划理念
学界一般认为战国时期成文的《周礼·考工记》,是现存中国古代最早对以王城为代表的城市规划进行理想化描述的文献,其核心文本为:“匠人营国,方九里,旁三门,国中九经九纬,经涂九轨。左祖右社,面朝后市,市朝一夫。”这种理想的王城由两重城垣相套构成,大城为边长九里的城墙围合的方形城池,每面设三座城门,四面环抱位居中央的宫城。这样理想的城市规划以大一统王朝的王城为基准,诸侯国都城、卿大夫采邑的规格则按照等差进行削减。在周王朝的天下秩序中,古人是否践行过这些理想城市规划理念,是追溯其历史渊源的关键环节。
(一)理想城市规划理念与鲁国营造实践
根据浙江大学陈筱博士的研究,可将《周礼·考工记》理想城市规划的核心内容提炼为:①王城由内外两重城垣相套构成,外城四面环抱着中央的宫城。②外城为边长9里(约合3750米)的正方形,每面设三座城门,城门内通城市干道而构成井字形路网,城内可能还有若干次干道。③城内的功能区有王宫、祖庙、社稷、朝堂和市场等,不论它们位于宫城之内还是散布在外城中,其相对空间关系不变。④王城有明确的南北中轴线,形成了显著的几何中心点,不同功能区的规模存在整数倍的比例关系,很可能采用了模数制进行设计。
陈筱博士认为《周礼·考工记》不是对既有城市模式的记录,而是在成书阶段并未完全实现的理想城市规划,描述的是周王朝理想王城的边界与规模,城门、干道、城市主要功能构成及布置,应视作中国古代理想城市的文本渊源。宋代以来的学者根据自己对《周礼·考工记》文本的理解,绘制有多种王城布局推测图,图中都有贯通全城的南北向中轴线,轴线南部通过穿越城门的主干道、北部指向宫城。中轴线控制着城市功能单元和道路的空间布局,轴线东西两侧的城区结构对称、功能元素彼此呼应。这种中轴线控制全城布局的推断,在周代都邑考古资料中也有与之相应的案例,比如曲阜鲁城的布局就有此类现象。
田野考古和研究工作确认的曲阜鲁城城墙,始建于西周晚期,鲁国是西周初年周公的封地,鲁城应当有更早的城市建置基础。陈筱博士通过对鲁城路网结构和地貌的勘探复原,将南北向纵贯全城、大致居中的8号道路指认为控制全城布局的中轴线,这条道路通过城内自然高地中部,其延长线连接城南礼制建筑舞雩台。曲阜师范大学徐团辉博士认为鲁城中部偏东的南北向9号道路连接周公庙宫殿区和都城正门南墙东门,共同构成一条南北向的宫城中轴线,这条中轴线很可能在鲁城最初营建之时就已设计;春秋晚期在周公庙宫殿区增筑了一座横长方形小城,南门设于南墙正中并与9号道路相连,更加凸显了9号道路的宫城中轴线地位。
曲阜鲁城8号道路及其延长线贯通的全城南北中轴线,控制着宫城及各类功能区划的方位、道路网络的布局、礼仪性建筑的选址、冶铸工业区的分布,将城市内外空间紧密连接起来,使整座城市秩序井然。9号道路贯通的是以鲁城宫城为核心的南北中轴线,控制着宫殿、宗庙、衙署等高规格建筑的布局,使鲁城的核心日常运转整肃有序。
可见,《周礼·考工记》理想城市规划理念在曲阜鲁城的营造实践中有很多体现,因为鲁国的始封君周公是周王朝制礼作乐的主要负责人,曲阜鲁城应当是按照周王朝诸侯国都城规制营造的典范,其布局应是《周礼·考工记》理想城市规划文本的重要依据之一。
(二)周王朝都邑制度的郑国营造实践
在周王朝及诸侯国的城市营造实践中,《周礼·考工记》理想城市规划理念是否按照等差体现在不同规格的都邑建置上?我们可以通过考察来判断这种理念践行的历史纵深。
文献上最早关于周王朝都邑营造制度的描述是《左传·隐公元年》记载的祭仲规劝郑庄公的话:“都,城过百雉,国之害也。先王之制:大都,不过叁国之一;中,五之一;小,九之一。今京不度,非制也,君将不堪。”这里的“先王之制”指周王朝早期就厘定的都邑营建制度,郑国这样的诸侯国从国都到最基层的城邑分为四个层级,可根据周代尺度转换成通行的表述方式:1.国都的城垣规制是三百雉,相当于“方五里”即每边城墙长约2079米的方城,面积约432万平方米;2.大都的城垣规制是百雉,相当于“方三分之五里”即每边城墙长约693米的方城,面积约48万平方米;3.中都的城垣规制是六十雉,相当于“方一里”即每边城墙长约415.8米的方城,面积约17.2万平方米;4.小都的城垣规制约三十三雉,相当于“方九分之五里”即每边城墙长约231米的方城,面积约5.3万平方米。
郑国是否实施过祭仲所说的都邑营造制度,是检验这种理想的都邑制度是否为历史事实的关键。
荥阳京襄城村一带的春秋时期古城就是祭仲所说的郑国京城遗址,该城平面呈纵长方形,南北长约1820米、东西宽约1460米,面积约266万平方米。京城平均边长约1640米,约合3.94里、237雉,其规模远超“大都不过百雉”的标准。《左传·庄公二十八年》说:“凡邑,有宗庙先君之主曰都,无曰邑,邑曰筑,都曰城。”公子段被称为“京城大叔”,可知京城最初营建时是一座“有宗庙先君之主”的郑国“大都”,其宗法和政治地位都很高,作为国都新郑西北方向国君直辖的“大都”应当符合制度,并不存在“不度”和“非制”的问题,只是后来作为公子段的“都城”才“不度”并“非制”。
荥阳南城村南的春秋时期古城是郑国境内的古城遗址,该城平面呈横长方形,东西长约770米、南北宽约675米,面积约52万平方米,是一座约合边长为721米的方城,城垣规格约合1.73里、104雉,相当于“大都”的规制。
新密古城寨古城内有丰富的龙山时期至汉代遗存,城墙至今在地面仍可见,春秋时期郑国境内显然也能看到这座古城的城垣。该城平面近横长方形,南城墙和北城墙均长约460米、东城墙长约345米、西城墙复原长度约370米,面积约16.5万平方米,是一座约合边长为407米的方城,城垣规格约合1里、60雉,相当于“中都”的规制。
荥阳娘娘寨内城营建于两周之际,后来又营建了外城。内城平面近方形,边长约210米,面积约 4.41万平方米。外城南墙长约1200米且西接索河,东墙长约800米且北接索河,南城墙和东城墙呈直角曲尺形连接在一起,与索河共同形成相对封闭的围合空间,北墙和西墙未找到。娘娘寨内城城垣规格约合0.5里、30雉,接近“小都”的规制,说明春秋早期郑国境内应当存在祭仲所说的“小都”。
上述案例表明,田野考古发现的春秋时期郑国城邑与《左传》里祭仲所讲的都邑制度有高度的对应关系,郑国境内符合“先王之制”的“大都”“中都”“小都”是存在的,周王朝这种理想的都邑制度至少在一定范围内实施过,是一定时空范围内的历史事实,并非没有实践的理想制度设计。
中国古代理想城市规划的渊源
《汉书·礼乐志》载:“故象天地而制礼乐,所以通神明、立人伦、正情性、节万事者也。”“王者必因前王之礼,顺时施宜,有所损益,即民之心,稍稍制作,至太平而大备。”在古人的认知中,礼制的核心是维护社会秩序,既强调对前代礼制的继承,又注重顺时施宜、因地制宜。以曲阜鲁城及郑国城邑为代表的周王朝诸侯国城市规划与营造实践,是《周礼·考工记》理想城市规划的直接实践渊源,也是对此前夏商王朝政治文化遗产的继承和发展,可以鲁城为基点向前追溯理想城市规划理念更早的历史渊源。
周王朝在武王、周公带领下追寻“地中”“土中”“天下之中”的过程中,舍弃了前朝故都“大邑商”,选择了更早的夏都故地二里头一带。西周初年青铜器何尊的铭文记载了成王追述武王的话:“余其宅兹中或(国),自之乂民”,把营建于夏都故地二里头附近的东都成周称为“中国”,即周公“乃作大邑于土中”的中央之城,体现了“择中立都”“建中立极”的政治观念。以二里头夏都为中心的中原腹地,在西周初年已经明确成为观念上的“地中”“土中”“中国”等四方仰慕的中央神圣空间,中国古代逐渐形成“居中而治”的传统政治观。
二里头夏都的营造以及中原腹地作为中央神圣空间的形成,有着深厚的历史文化积淀。4000多年前的龙山文化时代,出现了一次广泛筑城的浪潮。在中原腹地临近水源的高阜平坦之地,用黄土夯筑城墙;在城内居高居中之地营造贵族宫室和公共活动空间,民居、作坊和墓地有序安排;干道连接城门,地下陶水管、暗渠或明渠构成完善的给排水系统。龙山时代的筑城和宫室营造技术,为夏商王朝城市规划和营造实践提供了技术积累,成为中国古代城市营造技术的主流,也是重要的中华文明基因。
公元前1800年前后,中原腹地形成以二里头夏都为代表的二里头文化,是对此前中华文明肇始阶段文化的凝聚和升华。纵横多条十字正交的路网结构,将二里头夏都区划成网格状多宫格“里坊式”布局,宫城位居中部偏东南。每个网格单元都是面积10万平方米左右的纵长方形,并且长宽比例接近,路网形成之后不久又分别在多个网格单元的道路内侧营造夯土围墙。二里头夏都宫城内10余座大型宫殿宗庙建筑排列有序,采用回廊庭院式布局,即是其后数千年官式建筑四合院式布局的渊源。二里头夏都的规划理念和营造实践已有建筑模数的意识,体现了王都规划“模写天下”的宇宙观。
新郑望京楼二里头文化城邑(夏城)及二里岗文化城邑(商城)的选址和规划理念与二里头夏都最为接近,其城垣围合的面积约37万平方米、平面近菱形,商城内由道路及其延长线界隔成九宫格式布局,每个单元格的面积约4万平方米,相当于二里头夏都的缩略版。
二里头夏都以宫城为中心的“多宫格”布局、中轴线理念、四合院式宫室制度,以青铜礼器为核心的多材质组合的器用制度,以宴享、祭祀、丧葬为代表的礼仪制度等,创造了新的空间秩序和价值秩序,体现了更加成熟的王朝礼制。
商王朝早期以郑州商城和偃师商城两座王都的营造为引领,也出现了一次广泛筑城的浪潮。郑州商城营建在丘陵与平原过渡地带的高阜平坦之地,临近河湖等充足的水源,300万平方米左右的大城(内城)平面为纵长方形,东北角受紫荆山自然土岗的影响形成一个折角。郑州商城大城东北部发现的垣墙及其延长线,可将宫殿宗庙建筑界隔成多个“宫城单元”。也有学者结合夏商王朝都城布局特征和规划理念,提出“宫城”应在大城中部一带。根据目前的考古发现情况,郑州商城大城中南部很可能存在多个重要的功能单元。
郑州商城与历代郑州城重叠,很难对“宫城单元”或“网格单元”进行清晰识别,也无法确认其是否存在如二里头夏都一样的网格状“里坊式”布局。但这种将都城按功能区划分成若干单元的方式,无疑继承了二里头夏都的规划理念。在郑州商城大城之外,又结合周围岗地及河湖水系,因地制宜营建了防护范围达到1000万平方米以上的外城,实现了中原王朝都城的第一次超大型建设。郑州商城作为商王朝取代夏王朝前后营建的都城,继承了二里头夏都的营造技术和规划理念,又有很多创新和突破,比如上文提及的因地制宜营建了面积达到1000万平方米以上的外城,给排水设施更加复杂完善等,其都城规划和营造实践体现了商王朝建立者们的理想和追求。
偃师商城是在二里头夏都附近选择理想之地平地起建的,既有近在咫尺的二里头夏都作为模本,又有营造郑州商城最早一批宫殿宗庙建筑和宫城的实践经验,因而其营造可以更好地体现商王朝初年的建城理想。偃师商城首先营造了面积4万平方米左右的近方形宫城,宫城居于其中部偏南的位置,之后向外营造面积约81万平方米的纵长方形大城(早期大城,即考古报告中所说的“小城”),从而形成重城相套的结构。早期大城与宫城大体是同一条南北中轴线,且以此对称有序、布局严整地营造了多个近方形功能单元,每个功能单元约4万平方米。偃师商城西南角有一个约3.5万平方米的府库类封闭单元,西北角有一个约4万平方米的仓储类功能单元,而东南角、东北角的城墙都有与西南角、西北角相似的拐折,由此推测这两个位置也应有相对独立的功能单元。虽然目前还无法确认81万平方米的大城是否都用垣墙和道路界隔成“里坊式”的功能单元,但可以明确的是,其继承了二里头夏都网格状“里坊式”布局的规划理念,并且进一步发展了建筑模数意识。偃师商城功能单元的建筑模数明显小于二里头夏都的宫城,表明其规格低于真正的王都。偃师商城宫城内营建的东西两组建筑,每组建筑也依然遵循始于二里头夏都的南北向中轴对称原则。
郑州商城和偃师商城的城市规划,体现了商王朝“模写天下”的宇宙观和对都城秩序的追求,影响后世数千年的都城规划和城市营造。商王朝中期营建的安阳洹北商城,总体布局更加追求方正规矩、重城相套、中轴对称、四合院式建筑等,把“模写天下”的都城规划理念推向新高度。
这些自二里头夏都以来的营造实践积累的城市规划理念,包括城圈方正规矩、重城相套、中轴线控制全城、网格化分区规划、四合院式宫室建筑等,与后来曲阜鲁城代表的理想城市的早期实践有明显的渊源关系,当为《周礼·考工记》所载理想城市规划理念的历史渊源。
中国古代理想城市规划理念的赓续
中国古代理想城市规划文本形成之后不久,秦统一六国,建立了大一统王朝。《史记·秦始皇本纪》《三辅黄图》等文献记载表明,秦始皇重新营造都城咸阳的原则是“法象上天”,与理想城市规划“模写天下”的理念不是一个传统。西汉帝都长安城按功能区划营造多个宫城的方式,虽与理想城市规划理念有接近之处,但比起二里头夏都、偃师商城的布局,仍然因地制宜有余、规划严整不足。
后世都城营造实践中,在东汉魏晋帝都洛阳城基础上重新营造的北魏帝都洛阳城,是遵循中国古代理想城市规划理念的一个关键节点。洛阳城内,铜驼街北端连接宫城、南端延伸至礼制建筑圜丘,这条线就是控制全城布局的南北向中轴线,与曲阜鲁城的南北向中轴线非常相似;宫城和衙署之外,北魏洛阳城还有纵横交错的道路网络界隔的大量里坊空间,与二里头夏都、偃师商城的规划理念遥相接应。这些应当反映了从北方迁入中原的魏孝文帝竭力追求正统王朝理念的迫切心情。
北魏王朝的后继者东魏北齐在北魏洛阳城规划理念和营造实践的基础上,重新规划并营造了东魏北齐帝都邺城,新邺城与北魏洛阳城的形制相仿,其布局更加方正规矩、中轴线更加突出。整座城市以宫城为中心,围绕全城中轴线对称布局,城内分布着数量众多的里坊。东魏北齐邺城的布局,体现了对中国古代理想城市规划理念的继承与创新,对后世的隋唐长安城、洛阳城的“棋盘式”里坊布局产生了直接影响。
北宋东京城从州桥经天街到宣德门一直纵贯至大内,有一条明确的南北向城市中轴线;东西向穿城而过的汴河以象天汉,州桥也称为天汉州桥。因此,北宋东京城的布局理念“象天法地”,对中国古代理想城市规划理念既有继承、又有创新,也形成了新的开放式城市空间。起家于北方草原地带的元世祖忽必烈营造帝都元大都时,在金中都的基础上采用《周礼·考工记》的理想王城规划理念设计并营造,与魏孝文帝营造北魏洛阳城时竭力追求正统的心情非常接近。元大都受原有建筑和地形地势的影响,营造时并不能很好地实现理想城市规划理念,此后平地起建的元中都、明中都是更贴近《周礼·考工记》规划理念的城市。明清北京城继承了元大都的城市规划理念并拓展创新,中国古代理想城市规划理念融入明清北京城的营造实践中,也成为赓续至今的中华文明基因。

用户登录
还没有账号?
立即注册